Этот двухэтажный гостевой домик в Подмосковье построен и декорирован в едином стиле с соседним с ним большим хозяйским домом. Внешним и внутренним обликом обоих строений занималась дизайнер Татьяна Сорокина (Ильина) из бюро «Миллиметр». Татьяна присоединилась к работе над проектом, когда уже были возведены кирпичные стены, начата кровля и частично подведены коммуникации.
В работе самое активное участие принимала и заказчица, Людмила Семеновна, большая любительница антиквариата. С ней Татьяна уже сотрудничала раньше и связана дружескими отношениями. Стиль шале в интерьере загородного дома появился по желанию хозяйки, которая захотела непременно обзавестись на подмосковной земле «хижиной альпийского пастуха».
Строительство продолжалось 2,5 года (с учетом сезонных перерывов). Как во всех классических шале, нижний этаж дома кирпичный, а верхний — бревенчатый. Соответственно, все верхние конструкции тоже деревянные. Небольшая высота потолков (2,5 м) и маленький размер помещений, по словам Татьяны, также характерны для шале. «Первоначальный замысел был полностью реализован, но были какие-то вещи, которые мы принципиально оставляли «на потом», чтобы это рождалось в процессе и органично вписалось в дом», — поясняет автор проекта.
О проекте
Место: Одинцовский район, Подмосковье
Год: 2014
Кто здесь живет: Супружеская пара, у которой есть взрослые дети и внуки
Автор проекта: Татьяна Сорокина (Ильина), бюро «Миллиметр»
Фото: Анатолий Шостак
Очень важным при оформлении этого загородного интерьера было создать правильную атмосферу, передающую дух настоящего шале. Этому способствовал тщательный подбор цветов и материалов: «Цвет дерева первого этажа мы искали очень долго. Мы хотели, чтобы он стал своеобразным «ядром» помещения,
— вспоминает Татьяна,
— Мы сделали, наверно, пятнадцать образцов покраски досок, прежде чем нашли тот оттенок, который был нужен».
Дизайн интерьера загородного дома в стиле шале (на фото) ассоциируется с простотой, комфортом и домашним уютом
«
Я создала общий фон, а потом он наполнился интересными предметами, найденными и привезенными заказчицей»
, — рассказывает Татьяна. Хозяйка раздобыла на европейских блошиных рынках множество винтажных или выполненных под старину предметов мебели и декора, за счет чего обстановка стала сразу выглядеть обжитой, имеющей историю и даже слегка романтичной.
«Заказчица могла привезти, скажем, подсвечник, а строители, которые включились в творческий процесс, выводили провод и делали из него, например, бра», — говорит дизайнер.
«Поскольку дом деревянный, то он уже изначально имеет некую декоративную окраску, и нашей целью было не испортить ее каким-то «новоделом», не потерять ощущение природности, экологичности»,
— подчеркивает автор интерьера.
Белые стены сразу переносят внимание на красивый глубокий цвет узкой, причудливо изогнутой лестницы. И полы, и лестница выполнены из лиственницы, прочное дерево которой оказалось, по словам Татьяны, идеальным выбором для архитектуры в стиле шале.
Розетки и выключатели: Llinas
При создании лестницы, ведущей в подвал, где расположены кладовые и коммуникации, были использованы цельные камни — опять же для имитации атмосферы шале: «Огромные валуны никак не обрабатывали, лишь чуть-чуть подрубали. Благодаря этому создается ощущение, будто ступени выдолблены в горе»,
— поясняет дизайнер.
Двери: New Design Porte
В оформлении интерьера дома в стиле шале использована цветная плитка, имитирующая обливную керамику. Она намеренно выкрашена как бы «неровно», с разводами и подтеками. Эта деталь выглядит обаятельно и отсылает к старине. «Плитка очень хорошо подошла нам по стилю»,
— отмечает Татьяна.
Плитка: Manet Tiles
На стене санузла на первом этаже нашлось место винтажному шкафчику со стеклом, который поддерживает «деревенскую» ностальгическую тему. Деревянный потолок с балками и стена, оформленная деревом, удачно обыгрывают мотив старого дома. Цветовая гамма (белый и оттенки коричневого) продолжает эту линию.
Сантехника: Devon&Devon, Duravit; смесители: Hansgrohe, Nicolazzi; свет: Kolarz
Супруг заказчицы увлекается рыбалкой и охотой: это во многом предопределило как само появление гостевого домика, так и его внутреннее наполнение. Например, в зоне для водных процедур после охоты можно отдохнуть с друзьями: окунуться в мини-бассейн и попариться в сауне.
Зона бассейна оформлена плиткой из керамогранита с имитацией ржавчины. Это тоже играет на руку иллюзии экологичного «дома с историей». «Сначала мы хотели сделать декор из настоящего железа, но из-за высокой влажности помещения в итоге решили отказаться от этой идеи»,
— рассказывает автор проекта.
Стена с окном — для контраста — покрыта белой штукатуркой. На полу уложена керамическая плитка под дерево: у дизайнера опять же была идея использовать здесь натуральное дерево, но из соображений практичности все-таки выбрали его имитацию.
Керамогранит: Revigres; плитка: Manet Tiles
«Сначала в доме появлялись предметы, а потом мы их куда-то ставили, находили им место»,
— рассказывает Татьяна о процессе декорирования, носившем, благодаря хозяйке дома, характер постоянного творческого поиска.
Остроумные и необычные европейские «трофеи» помогли дизайнеру расставить недостающие акценты и придать дому уют: коврик в деревенском стиле хорошо уживается с фактурной древесиной лестницы, а синий комод со стоящей на нем забавной рыбой разбавляет строгость обстановки шале.
Назначение комнат в доме Татьяна не меняла, хотя изначально у нее и было такое желание. Помешали архитектурные особенности постройки, в частности, деревянный конструктив второго этажа: «Там не особо можно было что-то сдвинуть, так как все связано с внешними стенами, с кровлями»,
— вспоминает дизайнер.
Декор второго этажа практически повторяет оформление первого: здесь также присутствуют стены, крашенные под штукатурку, деревянные стены и деревянный пол подходящего цвета. Все самые интересные стилистические элементы расположены на потолке и под ним — деревянные перекрытия и открытые скаты с балками, без которых невозможно представить дом в стиле шале (на фото).
Вентиляция в доме полностью естественная, кондиционеров нет: «Шахты вентиляции мы оформили как имитацию печей. Для них я специально привезла с блошиных рынков Европы чугунные печные дверцы», — делится автор проекта. Фальшивые печи — еще одна деталь, благодаря которой создается обстановка аутентичного пастушьего домика. Светлые стены — так же, как лестница, балки и дверные проемы — выполнены из лиственницы, однако сохранили ее естественный цвет, благодаря чему помещения верхнего этажа выглядят мягче и легче.
В обеих спальнях место изголовья кровати заняли декоративные росписи: они приковывают к себе внимание. Идея подобного оформления спален возникла у хозяйки еще до строительства, а конкретные мотивы росписей были придуманы позднее, уже по ходу работы. Сказочное дерево, украшающее стену этой комнаты, рифмуется с «расписным» узорчатым текстилем.
Рядом со спальней расположен санузел с ванной, декорированной в старинном духе. Акцентной деталью этого помещения стали деревянные дверцы под чашей ванны: одна пара дверец
— имитация, а другая открывает доступ к коммуникациям. «Дверцы делали наши строители:
мы сочиняли и рисовали их, сидя на объекте. Так мы делали весь дом. Конечно, был проект, были картинки, но потом мы уже на месте прорисовывали каждую деталь»,
— рассказывает Татьяна.
Сантехника: Devon&Devon, Duravit; смесители: Hansgrohe, Nicolazzi
На стенах ванной использована уже знакомая по первому этажу состаренная плитка, напоминающая обливную керамику. Она дополнена ретро-смесителями и соответствующими аксессуарами. Однако «примой» этого уголка стала необычная раковина в виде выдолбленного камня, которую нашла и привезла опять-таки неутомимая заказчица. Ретро-фотографии — тоже ее приобретение. Они добавляют старинной теме в интерьере еще большую весомость.
Приглядевшись, можно обнаружить, что черное изголовье кровати второй спальни
— еще одна обманка: оно нарисовано на белой стене. Его ритмичный контур структурирует пространство и частично повторяется в ножке настольной лампы. «Половину светильников в доме мы делали сами»,
— уточняет автор проекта.
Кровать — как в этой спальне, так и в предыдущей — тоже самодельная, созданная по рисункам дизайнера: каркасы выполнили строители на объекте, и оставалось лишь приобрести к ним матрасы.
В этой спальне тоже есть имитация печи, скрывающая шахту вентиляции. Она оформлена все той же плиткой с эффектом обливной керамики, которая присутствует и в ванной, и на первом этаже: такая последовательность в выборе декора поддерживает стилистическое единство всех помещений в доме.
На фоне фальшпечи красуется знаменитое дизайнерское кресло «с ушами». Оно вписалось в это рустикальное пространство благодаря кожаному сиденью с грубыми стежками.
Шале — стиль уюта и особой расслабленной атмосферы, исходящей даже от фото дома
Кровля гостевого дома покрыта не обычной черепицей, а сланцем — натуральным фактурным камнем серого цвета (еще одна черта настоящего шале). «Чисто конструктивно это очень тяжело было сделать, так как нагрузка на крышу очень большая, поэтому кровлю два раза перекладывали», — делится Татьяна.
Дизайн загородного дома в стиле шале (на фото) дополняют аутентичные детали фасада — например, деревянные резные ставни. «Элементы на фасаде вроде кронштейнов и декоративных поясков мы долго подбирали — с той целью, чтобы по стилю все это было ближе к Франции. Также принципиальным было использование ажурных элементов», — говорит автор проекта.
«В начале работы я знала, что такое шале, но не знала всех тонкостей конструктива, деталей»,
— признается дизайнер.
«Буквально каждый сантиметр мы продумывали вместе, — так описывает работу со своей увлеченной заказчицей Татьяна. — Надо отдать должное и строителям, которые не стремились к тому, чтобы побыстрее закончить и получить деньги, а старались понять, чего мы от них хотим, и, когда понимали, тоже начинали экспериментировать».
Так что родной брат настоящего французского шале возник на подмосковной земле благодаря энтузиазму заказчицы и, конечно, профессионализму дизайнера, которая в ходе работы над проектом подробно изучила стиль шале, конструктивные принципы, внешний вид и внутреннее убранство подобных домов.
План первого этажа: левую часть дома со своим входом занимает охрана, правая предназначена для гостей. В гостевой части первого этажа находятся кухня, санузел и сауна с мини-бассейном
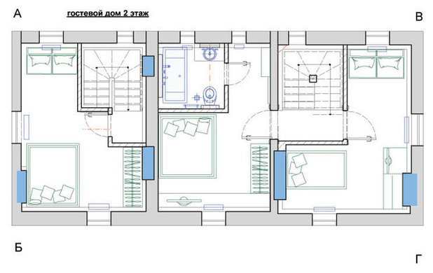
План второго этажа: слева — жилое помещение для охраны, справа — гостевое пространство с двумя спальнями и санузлом
ЧИТАЙТЕ ТАКЖЕ…
Кухня в стиле Шале
ПРЕДЛОЖИТЕ СВОЙ ПРОЕКТ ДЛЯ ПУБЛИКАЦИИ
Загрузите фотосъемку в свой профиль на отправьте ссылку и краткое описание проекта на RuEditors@Domasan.ru
Мы обязательно свяжемся с вами, если примем решение о публикации.
Originally posted 2015-05-22 14:14:29. Republished by Blog Post Promoter