Место: г. Москва, ул. Пресненский Вал
Год: 2017
Размер: 80,35 кв.м
Кто здесь живет: Станислав Калинкин, генеральный директор продюсерского центра Иосифа Пригожина
Авторы проекта: Виктория и Юрий Харченко, Студия дизайна Four rooms
Фото: Марк Кожура
В этом проекте многое взято от индустриального стиля: открытое пространство, кирпич, дерево, промышленные светильники. Правда, Виктория и Юрий смягчили жесткость характерных материалов: вместо грубого бетона использовали декоративную штукатурку с имитацией, кладку выполнили белым кирпичом, рядом поставили мебель неоклассических форм.
«Заказчик хотел песочных красок, но нам знакома его семья — они предпочитают эффектный гардероб и яркую жизнь. Полагая, что все это есть и в молодом человеке, мы предложили контрастный интерьер. И оказались правы. Попали в точку настолько, что даже картину для гостиной он заказал с теми же акцентами». — вспоминает Виктория.
Объемная панель за изголовьем задает динамику пространству комнаты. Геометрический мотив продолжается на потолке — сюда завели паркетную доску и повесили современную люстру.
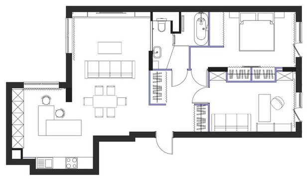
«Часто заказчики стремятся нарушить правила и поменять назначение помещений, увеличить их площадь или разрушить конструктивные стены, — рассказывает Юрий — Мы не допускаем таких ситуаций и всегда предлагаем альтернативный вариант. В этом проекте удалось углубить ванную за счет коридора, что немного увеличило её площадь».
СМОТРИТЕ ТАКЖЕ…
Другие проекты того же автора — в портфолио Виктории и Юрия Харченко, Студия дизайна Four rooms
У ВАС ЕСТЬ ДЛЯ НАС ПРОЕКТ…
Загрузите съёмку в свой профиль на отправьте ссылку с кратким описанием на RuEditors@Domasan.ru
Для справки: Какие объекты мы публикуем
Originally posted 2017-11-28 09:21:21. Republished by Blog Post Promoter