О проекте
Место: Тверь
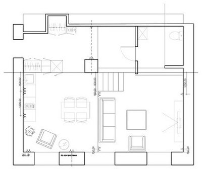
Размер: 45 кв.м
Кто здесь живёт: Дмитрий Иевлев с супругой и маленькой дочерью
Автор проекта: хозяин квартиры
Фото: Полина Иванова
На чем сэкономили: Серый керамогранит во входной части — такой же, как и в ванной комнате. Чтобы не заказывать новую партию, Дмитрий оформил прихожую остатками материала.
Кроме самой кровати, в нише обустроили небольшие шкафы с серыми створками. Левее, уже под зоной прихожей, тоже удалось сохранить нишу. Пока её занимают остатки стройматериалов, но в будущем Дмитрий собирается организовать там домик для детских игр.
Обратите внимание: Узкая полка вдоль всей стены студии образовалась из-за выступа, на который крепились балки пола. Теперь здесь хранится коллекция камней.
Потолки хотели сделать черными, а электрику смонтировать открытым способом. От этого плана отказались из-за деревянных перекрытий: оказалось, что через микрощели в потолке слышно все, что происходит у соседей. Чтобы защитить квартиру от шума, потолок смонтировали с виброподвесами. И сделали в итоге белым, чтобы интерьер смотрелся светлее и воздушнее.
Потолочный светильник-паук — разработка Дмитрия, которую владелец собрал по частям: заказал из Англии плафоны и отдельно — провода в декоративной оплетке. В ходе сборки оказалось, что лампочки не вкручиваются в патроны. Специальные переходники пришлось искать на Ali Express.
Подоконники сделали из двух склеенных листов фанеры под побелкой, а трубчатые радиаторы заказали на производстве КЗТО. Все коммуникации для отопления спрятаны внизу — за плинтусом, под слоем гальки. Эту идею Дмитрий подсмотрел в ресторане, но нижним слоем решил засыпать керамзит: он легче, чем камни, и нагрузка на пол становится не такой существенной.
На чём сэкономили: Стол из ИКЕА дополняют стулья, купленные через интернет — каждый стоил около 2500 рублей. Все светильники (кроме авторской люстры) — с Ali Express. Столешница кухни выполнена из массива березы: Дмитрий сам распилил материал и покрыл его маслом.
Душевую кабину собрали на месте из плиточного поддона и двух стеклянных створок. Сэкономить не удалось разве что на начинке — лейке с терморегулятором и функцией тропического душа. Слева от унитаза предусмотрели скрытый люк: в образовавшейся нише спрятали водонагреватель на 80 литров.
МЫ ЛЮБИМ ХОДИТЬ В ГОСТИ…
Хотите стать героем следующей статьи? Напишите на RuEditors@Domasan.ru и приложите несколько фотографий своего интерьера (достаточно съемки на смартфон). Мы обязательно свяжемся с вами, если примем решение о публикации!