Этот дом на углу Тверской улицы и Пушкинской площади — яркий пример сталинской архитектуры — был построен по проекту А.Г. Мордвинова в 1930-е годы. Дизайнеру Марии Рублевой хотелось выдержать атмосферу, выстроить связь будущего интерьера с историей дома. «Коренные москвичи по старой памяти называют это здание «домом под юбкой», поскольку до 1958 года его украшала огромная статуя балерины (скульптор Г.И. Мотовилов). Дама была грациозной, а горожане считали, что это вылитая Ольга Лепешинская, балетная прима Большого театра», — рассказывает Мария.
Место: Москва
Год: 2016
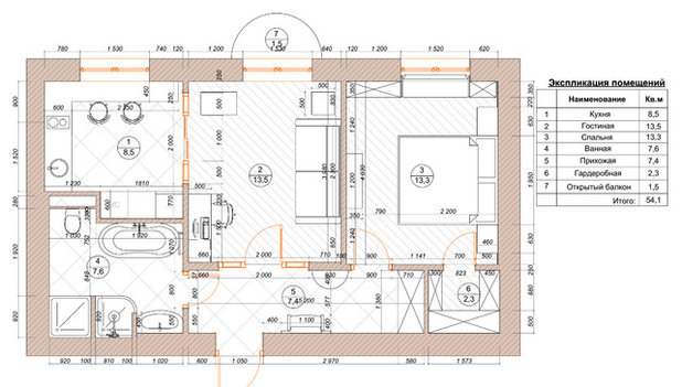
Площадь: 54 кв.м
Кто здесь живет: Девушка
Автор проекта: Мария Рублева
Фотограф: Сергей Красюк
Квартира небольшая, всего 54 кв.м, но трехметровые потолки и вид на Пушкинскую площадь, вдохновивший дизайнера на старте работ, придают жилищу ощущение простора.
В гостиной установили окна с высоким уровнем шумоизоляции. Когда они закрыты, в квартире царит полная тишина. Для обогрева гостиной вместо обычного радиатора решили использовать напольный конвектор.
Часть высоких шкафов в кухне встроены в нишу, образованную за счет ванной комнаты. Фасады шкафов скрывают холодильник, духовой шкаф и стиральную машину.
Атмосферу интерьера «с историей» дополняют светильники Chandelier Kasbah Oval от Eichholtz.
Зеркала помогли визуально расширить пространство коридора, их использование в интерьере — один из любимых приемов Марии.
В спальне удалось сделать гардеробную комнату, о входе в которую можно догадаться только благодаря ручке. Дверь, имеющая скрытую конструкцию, замаскирована накладными молдингами (декоративными накладками) из гипса и оклеена обоями.
Стены выложены плиткой только до середины, остальная поверхность покрыта декоративной штукатуркой жемчужного оттенка. «На полу в ванной комнате и коридоре мы использовали плитку с красивой фактурой камня от Atlas Concorde, — говорит Мария. — Пол полностью обогревается, что важно в холодное время года».
Облицовочная плитка: Marvel, Pro Travertino Alabastrino; пол: плитка Marvel Pro, Atlas Concorde
Другие проекты того же автора — дизайнера Марии Рублевой
У ВАС ЕСТЬ ДЛЯ НАС ПРОЕКТ…
Загрузите съемку в свой профиль на отправьте ссылку с кратким описанием на RuEditors@Domasan.ru
Для справки: Какие объекты мы публикуем