Владелица квартиры попросила Анну Жемереву уложиться в небольшой бюджет: «Требовалось минимальное оформление, чтобы интерьер не производил впечатление: вау, тут потрудился профессионал, — рассказывает архитектор. — Ставка была сделана на планировку, простые линии, контрастные сочетания, тактильно приятные материалы».
О проекте
Место: Москва
Год: 2016
Размер: 50 кв.м; высота потолков — 2,7 м
Кто здесь живет: Молодая девушка
Автор проекта: Анна Жемерева, ORT-interiors
Фото: Оксана Инжуватова
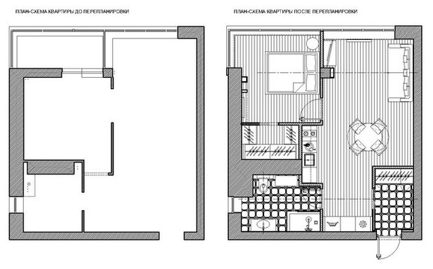
В плане квартира — почти квадрат. Бонусами от застройщика стало окно в зоне, где должна располагаться ванная комната, и возможность присоединить лоджию. Такое решение нужно согласовывать, а планировка дала возможность присоединить лоджию полностью
Анна с заказчицей возможностью воспользовались, изменив назначение помещений и количество комнат.
Анна с заказчицей возможностью воспользовались, изменив назначение помещений и количество комнат.
На месте бывшей кухни с лоджией появилась изолированная спальня с гардеробной, а новая кухня осталась в рамках нежилой зоны, но по другую сторону стены. За счет коридора увеличили ванную и гостиную. Получилась просторная квартира без единого коридора.
На фото: диван Doimo Salotti
В интерьере соединили мебель разных эпох и стилистик. Столовую группу 1960 годов увидели на выставке антиквариата, вполне уложившись в бюджет. Современные светильники (на предыдущем фото) выбрали в ИКЕА, кухню — в выставочном центре на Нахимовском проспекте.
Проблема и решение: Спальня и гостиная находятся на одной прямой, поэтому при перепланировке ограждающая колонна с ригелем от балкона осталась на территории гостиной — её превратили в сквозной стеллаж.
Проблема и решение: Еще один книжный шкаф появился в спальне по необходимости: нужно было спрятать стояки и оставить место для батареи. По авторским чертежам сделали полки из гипсокартона.
Часть спальни отдали под гардеробную комнату.
На фото: кровать Crate&Barrel
Во время перепланировки выделили четыре квадратных метра на изолированную прихожую. Эта часть квартиры отличается от остального пространства: Анна превратила прихожую в ультрасинюю коробочку. «Такая задумка — вызов гостю, который ждет, что дальше будет еще больший взрыв цвета, но этого не происходит», — объясняет замысел архитектор.
На фото: плитка Italon и Kerama Marazzi; сантехника Gustavsberg, Roca, Jika, «Сунержа»
В санузле хозяйка отказалась от ванны и душевой кабины. Ей хотелось сделать своего рода купель, в которой можно «отмокать» и принимать душ. Анна пыталась её переубедить, но в конце концов сделала поддон с высокими бортами, от которого заказчица осталась в восторге.
СМОТРИТЕ ТАКЖЕ…
Другие проекты того же автора — в портфолио Анны Жемеревой, ORT-interiors
У ВАС ЕСТЬ ДЛЯ НАС ПРОЕКТ…
Загрузите съёмку в свой профиль на отправьте ссылку с кратким описанием на RuEditors@Domasan.ru
Для справки: Какие объекты мы публикуем