Место: Москва, ЖК «Баркли парк»
Год: 2016
Размер: 260 кв.м
Кто здесь живет: молодая семья с двумя детьми
Авторы проекта: архитектурное бюро SL Project; руководитель проекта Алексей Николашин, архитектор Екатерина Емельянова
Фото: Михаил Степанов
Архитекторы Алексей Николашин и Екатерина Емельянова объединили две квартиры, купленные заказчиками, в одну большую.
В гостиной главной деталью стала стена, облицованная синим бразильским гранитом. Это эффектный декоративный прием и цветовой акцент. Но стена появилась не только для красоты — вместе с раздвижными стеклянными перегородками она отделяет кухню от гостиной.
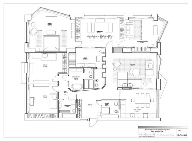
Квартиру купили со свободной планировкой, где кроме пилонов и стояков ничего не было. Здесь организовали одно общее и два приватных пространства: детское с двумя комнатами и санузлом и взрослое — со спальней, гардеробной, ванной комнатой и музыкальным кабинетом.
Между панелями выполнили рассечки из латуни. Они появились в продолжение «латунной» темы, отраженной в коллекции самоваров — ее с увлечением собирает хозяин.
«Большая часть коллекции находится на даче, а здесь выставили лучшие самовары. В стене, плавно переходящей из прихожей в гостиную, для них сделали ниши. Самовары и задали мотив “латунь” в интерьере», — рассказывает Алексей Николашин.
«На картине, созданной в 3D формате, японская девочка — будто живая. Она поворачивает голову в вашу сторону, провожая взглядом, когда вы движетесь. Хозяева говорят, что это приятно», — делится Алексей.
Текстиль присутствует не только на своих привычных местах: ковер, мягкую мебель, подушки и шторы дополняет столешница журнального стола, обитая прочной тканью с пропиткой.
Проблема и решение: Двухуровневые потолки сделаны неслучайно. В пространстве между верхним и нижним уровнями спрятаны коммуникации: системы вентиляции и кондиционирования.
Из кухни есть выход в прихожую. В пенале внутри стены прячется стеклянная перегородка, которая, выезжая, закрывает кухню от прихожей.
Строгую минималистичную кухню заказали на итальянской фабрике. Фартук из искусственного камня сделан в комплекте с кухней.
В блок для родителей можно попасть через гостиную. Проходная гардеробная соединяет все помещения взрослой части квартиры: санузел, музыкальный кабинет и спальню с окнами по двум стенам.
Между ванной комнатой и гардеробной разместился стеклянный шкаф. Одежда в нем лежит неплотно — чтобы не мешать дневному свету попадать в ванную комнату.
В главной спальне стену за изголовьем выделили порталом из черного мрамора. Внутри установили мягкие панели из ткани с мелким рисунком и с разбивкой, как у шоколадки.
Двери в квартире отделаны серо-коричневым шпоном дуба, а вместо наличников их украшают порталы из черного мрамора. «Мы специально выбрали такой темный дуб — сильно затененный и заморенный — чтобы он не спорил с орехом», — поясняет Алексей.
Оказывается, теплыми бывают не только дерево и текстиль, но и камень. Дело в том, что настольная лампа светится двойным светом, исходящим от абажура и от основания из оникса. Светло-желтый оникс, подсвеченный изнутри, дает ровное красивое свечение. Основание и абажур включаются отдельно.
Отражающие светодиодные ленты завершают композицию с лампами. Прорисовывая контур ниши, они добавляют графики и контраста в зону с кроватью, делают ее более эффектной, значительной и торжественной.
Еще одна из знаменитых гитар, висящих на стене, по словам Алексея Николашина, принадлежала AC/DС.
Душевую выложили синим гранитом, который сочетается с белым мрамором. Разводы на мраморе помогают связать его с гранитом.
А дальше прячется еще одна интересная задумка: остальные деревянные панели — задние стенки ниш с самоварами в гостиной. Дело в том, что вместо межкомнатной стены, разделяющей санузел и гостиную, архитекторы спроектировали зигзагообразную перегородку, образующую ниши в двух помещениях. Перегородка изгибается, отдавая необходимый объем то ванной, то гостиной. Это хорошо видно на плане квартиры.
В детских мебель набиралась одинаковым способом: как конструктор, из разных модулей.
Другие проекты тех же авторов — в портфолио Архитектурного бюро SL Project
У ВАС ЕСТЬ ДЛЯ НАС ПРОЕКТ…
Загрузите съёмку в свой профиль на отправьте ссылку с кратким описанием на RuEditors@Domasan.ru
Для справки: Какие объекты мы публикуем