Место: Москва
Размер: 71 кв.м
Кто здесь живёт: семейная пара с маленьким ребёнком. Она занимается живописью, он — менеджер в иностранной компании
Автор проекта: Елена Никитина, U(nik) design team
Фото: Денис Васильев
У архитектуры сталинского периода немало преимуществ: высокие потолки, просторные комнаты, толстые стены. Эта квартира покорила владельцев и дизайнера большими окнами, которые выходят сразу на три стороны: пространство залито светом даже в плохую погоду.
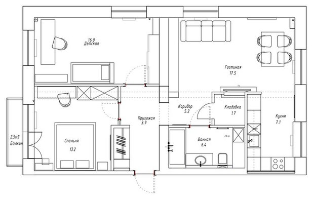
«По планировке заказчики хотели сделать две спальни — для себя и ребенка, — рассказывает Елена Никитина. — Задуманная гардеробная не получилась из-за расположения несущих стен и окон. Зато удалось сделать небольшую кладовку и увеличить ванную». Правда, перед началом отделочных работ пришлось провести основательный демонтаж и вынести горы строительного мусора с пятого этажа в доме без лифта.
Отличительная черта интерьера — авторская мебель из мастерской Kapellmeister. Все столярные изделия — шкафы, двери, стеллаж и консоль в гостиной — выполнили под размеры помещения.
Стол пришлось собирать по частям: ножки изготовили в мастерской, а столешницу заказали онлайн на профильном производстве. Зону столовой акцентирует и дополняет картина Бориса Кочейшвили «Лодка» из галереи «Здесь».
Саму кухню в результате перепланировки немного уменьшили, оставив лишь «голый функционал»: теперь площадь открытого помещения составляет семь квадратных метров. Так удалось увеличить ванную и предусмотреть в квартире небольшую кладовую.
Фасады кухонного гарнитура облицованы шпоном дуба, а корпус мебели изготовлен из влагостойкой ДСП. На верхних шкафах нет ручек, они открываются касанием. Для столешницы использован натуральный камень. Среди акцентных деталей в интерьере кухни — стул Soha Дениса Милованова и азиатская маска на стене.
Большую по площади комнату отвели под детскую, поэтому спальня родителей получилась камерной. «Мы решили создать “обволакивающую” обстановку, — рассказывает дизайнер, — отсюда золото в рисунке обоев и дизайне прикроватных столиков. К тому же заказчице нравятся золотые акценты». Тёмный цвет стен сбалансирован сложным розовым оттенком в текстиле. Акцентную стену украшает картина Бориса Кочейшвили.
СМОТРИТЕ ТАКЖЕ…
Другие проекты того же автора — в портфолио Елены Никитиной, U(nik) design team
У ВАС ЕСТЬ ДЛЯ НАС ПРОЕКТ…
Загрузите съёмку в свой профиль на отправьте ссылку с кратким описанием на RuEditors@Domasan.ru
Для справки: Какие объекты мы публикуем
Originally posted 2017-10-13 22:18:10. Republished by Blog Post Promoter