Место: Москва
Размер: 50 кв.м
Кто здесь живёт: молодая пара
Автор проекта: Ирада Дикушина
Фото: Ольга Мелекесцева
Словом, концепция интерьера рождалась в противоречии. Победил микс неоклассики и элементов лофта, которые создавали с довольно скромным бюджетом.
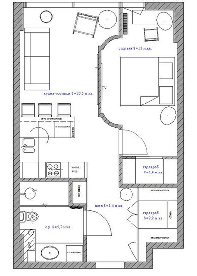
В квартире высокие потолки и нет несущих стен: казалось бы, идеальные условия, чтобы создать удобную планировку. Но ситуацию осложняли вытянутая форма пространства и недостаток освещения. «Остекление идёт лишь по одной узкой стороне, а рядом находится другой фасад здания, так что солнца в квартире мало. К тому же владельцы настаивали, что в квартире должна быть изолированная спальня. Логика пространства проста: фантазия была строго ограничена геометрией помещения. Пространство раскрывается к окну, а вспомогательные помещения разместились в глубине квартиры», — рассказывает дизайнер.
ПРИХОЖАЯ
У входа предусмотрен гардероб, замаскированный под фасад встроенного шкафа. Распашные дверцы по центру ведут в помещение площадью 3 кв.м — там находятся системы хранения верхней одежды и крупной бытовой техники.
КУХНЯ
Кухню П-образной конфигурации заказали у российского производителя. Обеденный стол заменила барная стойка со встроенными системами хранения. «Заказчики редко готовят дома, и все же кухня функциональна: здесь есть и необходимая техника, и фильтры для воды, и измельчитель отходов. Хозяйка любит посещать кулинарные курсы и время от времени готовит для двоих», — отмечает автор проекта.
На пол уложили паркетную доску из эбенового дерева, которая заходит на акцентную стену.
В отделке самого здания и придомовой территории есть элементы здоровой архитектурной иронии, например, современные скульптуры. Чтобы поддержать мотивы, заданные окружением, Ирада предложила использовать вместо книжного шкафа стеллаж в форме красного коня.
Белый диван изготовлен на заказ в подмосковной мастерской. На случай если у заказчиков останутся на ночь гости, предусмотрен раскладной механизм.
СПАЛЬНЯ
На плане хорошо видно, что одна из стен спальни выступает в зону гостиной и имеет радиусные элементы. «Стена нестандартной формы — приём, который позволил разместить две полноценные комнаты в узкой квартире», — поясняет дизайнер.
«Если включить в гардеробной свет, видно, что происходит внутри. Что касается обилия зеркал, мы с заказчиками ставили эксперименты: они уверяют, что зеркальный коридор — комфортный для них элемент», — рассказывает Ирада.
Для небольшого санузла владельцы предпочти душевую кабину. Стиральная машина скрыта под столешницей из тёмного мрамора. Там же находятся секции для хранения бытовой химии и бельевые ящики.
ОБ АВТОРЕ ИНТЕРЬЕРА…
Перейдите в портфолио Ирады Дикушиной, чтобы изучить другие работы и связаться с автором проекта
В ВАШЕМ ГОРОДЕ…
Найдите дизайнера на — закажите собственный проект