Место: Москва, Октябрьское поле
Размер: 48 кв.м
Кто здесь живёт: Ольга Сорокина, специалист по финансам и бухгалтерскому учёту, с двухлетним сыном Димой и корниш-рексом Бусинкой
Автор проекта: дизайнер Светлана Краснова
Фото: Наталия Куприянова
Квартира в доме серии I-515 стала для Ольги четвертым жильём, так что в вопросах ремонта она не новичок. «В первой квартире я сама клеила обои, во второй — выбирала всю отделку и мебель. В третьей вообще ничего не делала, а нынешнюю квартиру решила доверить дизайнеру и не пожалела: теперь каждый день прихожу домой с удовольствием», — рассказывает владелица.
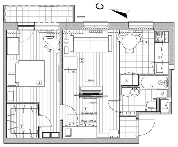
До ремонта квартира была поделена на маленькие помещения. Чтобы избавиться от тесноты, дизайнер предложила снести перегородки и поменять назначение комнат. Спальню обустроили на месте бывшей гостиной, а кухню присоединили к оставшейся жилой части.
Для прихожей и гостиной Светлана Краснова выбрала единую отделку — обои с ненавязчивым орнаментом, паркет и высокие плинтусы. Дух Прованса поддерживают светильники с коваными элементами и аксессуары.
Системы хранения выполнены на заказ, за одним из нижних фасадов скрывается кошачий лоток.
Со стороны гостиной к перегородке примыкает каминный портал. Его изготовили по эскизам дизайнера из фанеры, а затем окрасили и дополнили столешницей из брашированного массива. Вместе дровницы у камина поставили корзину с журналами.
Кухонный гарнитур выполнен из массива по чертежам дизайнера. Правда, заказывая его в небольшой мастерской, хозяйка немного промахнулась с цветом: в проекте фасады были светлее и без жёлтого оттенка. Эту проблему решили с помощью бирюзовых и синих акцентов, которые уравновесили цветовой баланс.
На стене в гостиной повесили яркие картины с птицами, выполненные на досках.
Шторы сшили из испанских тканей в поддержку оттенков интерьера: тёмно-коричневые полотна перекликаются с диваном, бирюзовые узоры — с орнаментом ковра. Традиционный тюль заменили римской шторой с бирюзовым кантом. «Иногда кажется, что мы создавали интерьер под кошку: уж очень хорошо она вписывается в палитру», — смеётся хозяйка.
Шторы для спальни Ольга тоже сшила сама. Орнамент из букетов поддерживает дизайн декоративных подушек.
«Из-за детской кроватки каркас с матрасом пришлось сдвинуть от центра стены. А изголовье осталось на месте, так как организовано сплошной полосой», — поясняет Светлана Краснова. «Если попозже комната превратится в детскую, её легко будет изменить: оставить вагонку и обыграть интерьер, например, как палубу корабля», — добавляет хозяйка.
Раздельный санузел Светлана предложила совместить, чтобы выиграть место. После перепланировки образовалось два выступа. Один из них в зоне инсталляции скрывает вентшахту и стояк канализации. Второй (слева от раковины) появился из-за встроенного в нишу холодильника. Несмотря на сложную форму помещения, сантехнику удалось вписать в заданные размеры. В небольшой простенок между ванной и стояком поставили узкую стиральную машину.
МЫ ЛЮБИМ ХОДИТЬ В ГОСТИ…
Хотите стать героем следующей статьи? Напишите на RuEditors@Domasan.ru и приложите несколько фотографий своего интерьера (достаточно съёмки на смартфон). Мы обязательно свяжемся с вами, если примем решение о публикации!
Originally posted 2017-10-18 08:47:30. Republished by Blog Post Promoter