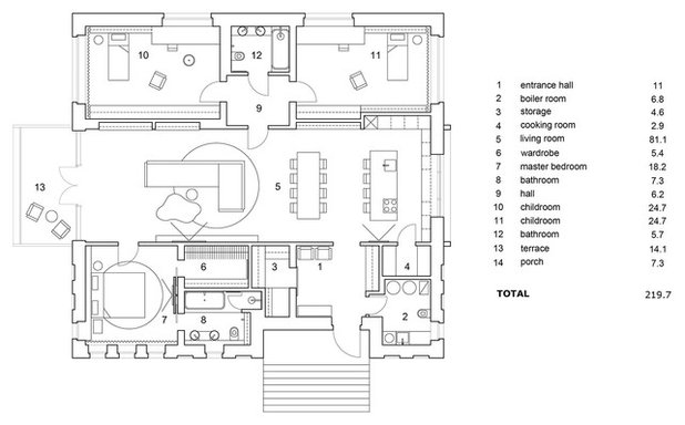
Строить дом заказчик собирался сам: купил землю, поставил баню в срубе и беседку, затем залил квадратный фундамент размером 16х16 м в углу участка. И понял, что без архитектора не обойтись. Сергей Колчин и Надежда Торшина из Le Atelier разработали под размеры фундамента трёхчастную планировку — с гостиной в центре и спальнями по бокам. Так появилась идея дома, который состоит из трёх блоков. По словам авторов проекта, такая конструкция смотрится легче, чем цельное одноэтажное здание с квадратом в основании.
О проекте
Место: Московская область, Шатура
Размер: 219 кв.м (включая террасу и крыльцо)
Кто здесь живёт: семейная пара
Авторы проекта: Сергей Колчин, Надежда Торшина, Le Atelier
Фото: Илья Иванов
«Это был новый для нас, но положительный опыт, всё прошло без ошибок. Владелец часто не понимал, что мы делаем и зачем, но полностью доверял. В процессе мы подружились и до сих пор общаемся. Своим домом он доволен, да и мы считаем проект одним из самых удачных», — рассказывает Сергей Колчин.
В блоке, где расположен вход, некоторые окна частично или полностью заложены: серый кирпич напилили под углом 75 градусов, чтобы сформировать рельефный орнамент (на фото).
«Мы хотели создать отсылку к сложной истории подмосковных домов. Отказались от архитектурных канонов в пользу диалога со средой», — рассказывает Сергей.
Террасная часть открыта к участку, но довольно высоко приподнята над землёй. Посоветовавшись с архитекторами, владелец решил, что два входа в дом ему ни к чему.
Прихожую выложили плитами из натурального мрамора «Индия Грин» — он сочетается с тиковой обшивкой кухни, которая просматривается из холла. Насыщенный зелёный цвет поддержали и в отделке фасадов шкафа для верхней одежды. Большое сдвижное зеркало скрывает вход в гардеробную.
Картина из магазина Cosmorelax; светильник куплен на московской выставке ISaloni из наличия
Кухня состоит из двух частей: внешней, видимой из гостиной, и небольшого подсобного помещения, попасть в которое можно через скрытую дверь (она расположена между телевизором и окном). В потайной части кухни находится вся бытовая техника — от чайника до кухонного комбайна, — которую владельцы не хотели держать на виду.
Кухня Cesar; обеденный стол Cattelan Italia; стулья Hartmann; светильники из магазина Cosmorelax
В родительской и детских спальнях потолки также опущены: под крышей размещается вентиляционное оборудование и воздуховоды. Перекрытие над гостиной бесчердачное: прорези в потолке подчеркивают геометрию и скрывают системы подсветки.
Самым важным требованием к спальне оказалась большая и очень мягкая кровать. За стёганым изголовьем возвели тумбу для дополнительного хранения.
«Самое интересное в спальне — оригинальные светильники, — рассказывает Сергей. — Мы старались выбирать всё из наличия: заказывать и ждать пришлось только диван в гостиную и кухню».
Кровать Sonberry; столик Yaratam; торшер Artemide; светильник Verner Panton Vp Globe
Ванные комнаты оформили тонким крупноформатным керамогранитом. Один из санузлов дополнили узором из цветной плитки, выложенной ёлочкой.
Отделка Laminam; раковины Krion
ОБ АВТОРАХ ПРОЕКТА…
Перейдите на личную страницу Сергея Колчина и Надежды Торшиной, Le Atelier, чтобы изучить другие работы из портфолио архитекторов или заказать собственный проект
КАК ЗАДАТЬ ВОПРОС АРХИТЕКТОРАМ…
Если у вас остался вопрос по маркам и конструктивным решениям, на который вы не нашли ответа в статье, спросите напрямую у авторов этого проекта. Откройте нужное фото в полноэкранном режиме, найдите кнопку «задать вопрос» в правом нижнем углу и напишите свой. Архитекторы получают уведомления о каждом вопросе, добавленном к их фотографиям
У ВАС ЕСТЬ ДЛЯ НАС ПРОЕКТ…
Загрузите съёмку в свой профиль на отправьте ссылку с кратким описанием на RuEditors@Domasan.ru
Для справки: Какие объекты мы публикуем
Originally posted 2018-04-22 16:56:01. Republished by Blog Post Promoter