Владелица квартиры Елена Ревич — творческая личность, известная в музыкальных кругах, — предпочитает не перегружать пространство вещами. В ее квартире на Никитском бульваре дизайнеры учли минималистические пристрастия хозяйки и подчеркнули историю дома, открыв на стенах кирпичную кладку.
О проекте
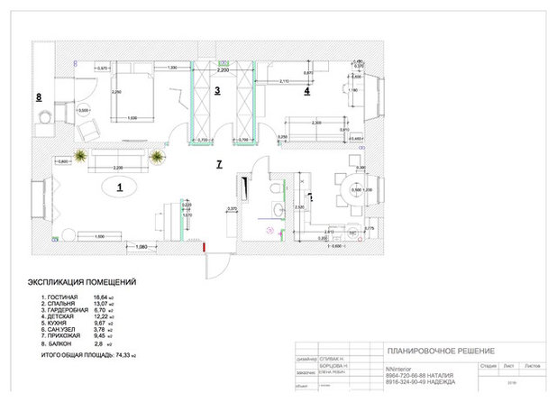
Место: Москва, Никитский бульвар
Размер: 74 кв.м
Кто здесь живет: Заслуженная артистка России, скрипачка Елена Ревич с дочерью
Авторы проекта: Наталия Спивак и Надежда Борцова
Фото: Дина Александрова
Для оформления пола Наталия и Надежда использовали паркет в раскладке английской «ёлочкой», а на некоторых стенах удалось сохранить аутентичный кирпич: его очистили от старых обоев и штукатурки и подновили краской Benjamin Moore.
В стене уже была ниша — ее обыграли как встроенный шкаф для книг и аксессуаров. На фортепиано играет дочь Елены: девочка учится в музыкальной школе и много времени посвящает занятиям.
«Владелица сразу сказала, что не любит шторы и согласилась на них только в спальне, — рассказывают авторы проекта. — Поэтому мы договорились использовать ставни. Батарея внизу закрыта экраном; вместе со ставнями композиция создает эффект окна в пол».
Большинство столярных элементов для проекта изготовили на заказ. Например, обеденный стол и столешницу гарнитура, уходящую в нишу. «Этот проем был предусмотрен оригинальным проектом: в советское время такие ниши предназначались для холодного хранения, их закрывали дверцами, но заднюю стенку не утепляли, — объясняют дизайнеры. — Мы решили сохранить нишу: подогнали под нужные размеры, утеплили, сделали подсветку и разместили там открытые полки».
Бра для чтения: Gramercy Home; текстиль и светильник на консоли: Zara Home
В комнате есть все, что необходимо для отдыха, учебы и хранения — от письменного стола и стеллажей до дивана и кровати с выдвижными ящиками.
СМОТРИТЕ ТАКЖЕ…
Другие проекты тех же авторов — дизайнеров Наталии Спивак и Надежды Борцовой
У ВАС ЕСТЬ ДЛЯ НАС ПРОЕКТ…
Загрузите съемку в свой профиль на отправьте ссылку с кратким описанием на RuEditors@Domasan.ru
Для справки: Какие объекты мы публикуем
Originally posted 2017-03-30 08:58:56. Republished by Blog Post Promoter