Считается, что в жаркий день легкий аромат ланолина наполняет причал Нью Фарм и Тенерифе в Брисбене. Возможно, он остался с 1900-х годов, когда богатства Австралии были тесно связаны с промышленностью, особенно с шерстью. Обширные склады шерсти и зерна простирались вдоль реки Брисбен.
В середине века экономика страны, основанная на шерстяной промышленности, пришла в упадок, и шерстяные склады закрылись. Они возродились в виде квартир в 1990-е, а сейчас многие из них ремонтируются, так как район Нью Фарм населяет все больше богатых людей. Мэтт Райли и команда Tonic Design переоборудовала квартиру в историческом шерстяном складе Winchcombe Carson.
Место: Брисбен, Австралия
Размер: 330 кв.м
Кто здесь живет: семейная пара
Автор проекта: Tonic Design, во главе с Мэттом Райли
История: склады шерсти и причалы использовались как база для подводных лодок США во время Второй мировой войны, а штаб генерала Дугласа Макартура находился неподалеку
Фото: Adz, Wikimedia Commons
Шерстяные склады в Брисбене — свидетельства роли, которую играла торговля шерстью в процветании этих мест. Многие из построек до сих пор носят имена тогдашних титанов шерстяной промышленности. Самый старый из этих амбаров — шерстяной склад Winchcombe Carson 1910-го года, спроектированный архитектором Клодом Чамберсом. Он имеет впечатляющий фасад и украшен гребенчатыми фронтонами. В 1990-х годов, когда на месте шерстяных складов стали появляться квартиры, многие исторические детали — туннели для кип шерсти, кедровые балки, кирпич и тяжелые деревянные дверные проемы — были сохранены.
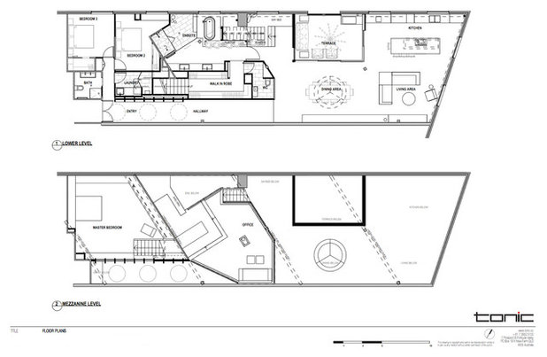
Парковка и магазины находятся на первом этаже здания; остальные три — занимают квартиры. Данная квартира расположена в угловом пентхаусе.
«У этой квартиры был выраженный характер с прекрасными деревянными балками и колоннами, высокими потолками, открытыми пространствами и изобилием дневного света. Высокие потолки дали нам возможность организовать мезонинный уровень и поместить туда спальню хозяина и гардеробную», — вспоминает архитектор.
В этой квартире архитекторы удачно использовали свет вертикальных стеклянных
стен, смотрящих на запад. «Это позволяет наполнить комнаты светом и создать крайне интересные перспективы», — говорит Мэтт. После наступления темноты включают огромный подвесной светильник из стали и стекла. «Это самый большой светильник, который мы когда либо устанавливали, — делится архитектор. — Он шириной в 8 футов (примерно 2,5 м) и был изначально разработан для олимпийского стадиона Барселоны».
Верхний этаж каждого шерстяного склада демонстрировал более утонченную отделку, чем нижние уровни. В золотую эпоху шерсти салон Winchcombe Carson считался достаточно роскошным, чтобы в 1920 году принимать бал в честь Принца Уэльского; на балу присутствовали все сливки брисбенского общества. Элегантная колонна с лепниной, ныне покрашенная в насыщенный желтый, фигурирующий во всей квартире, — это напоминание о былых днях благополучия.
Светильник: Estadiо, Santa & Cole
Переделка существующих лестниц была главной деталью в рационализации планировки квартиры и укреплении связи между двумя уровнями: «Мы сменили функции некоторых пространств и переделали пути, соединяющие их».
Ванна: Kado Lure с черно-белым обрамлением, Reece; плитка: Black, Classic Ceramics; напольный смеситель для ванной и ручной душ: Sussex Scala, Reece
«Мы умышленно увеличили размер этой L-образной черной балки над окном ванной, — объясняет Мэтт. — Это был удобный способ спрятать механизм ставень, обеспечивающий уединенность в ванной. Кроме того она сочетается с формами оригинальных кедровых столбов и балок».
Столешница столика: белый каррарский мрамор; раковина: A-line 750 Inset Basin, Parisi
Соседство этой современной палитры и модной мебели с текстурами оригинального оголенного кирпича и деревянными балками воспевает историю этого пространства, в то же время придавая ей свежести и индивидуальности, как того хотели хозяева квартиры.
Originally posted 2015-09-16 11:06:49. Republished by Blog Post Promoter