Дома серии II-68-04 выгодно отличаются от других типовых серий не только архитектурной пластикой, которая создает визуальный эффект «лестницы», но и удобными планировками, с расположением кухни в центре квартиры. А возможно ли сделать перепланировку этой квартиры еще лучше и удобнее?
Эти дома обладают не только визуальными преимуществами, но и другими хорошими характеристиками, такими как высокая степень инсоляции, что позволяет проникать солнечному свету в помещения, делая квартиры светлыми. Лоджии, расположенные в шахматном порядке, не затемняют квартиры, как это бывает в других сериях.
В доме достаточная тепло- и звукоизоляция толщиной 22 см, обеспечивающаяся расположением капитальных стен между квартирами и плитой перекрытия.
Домов серии II-68-04 было возведено мало из-за их недостаточной этажности, поэтому им на смену быстро пришла другая серия типовых домов, позволяющая разместить большее количество жилых квартир на такой же территории.
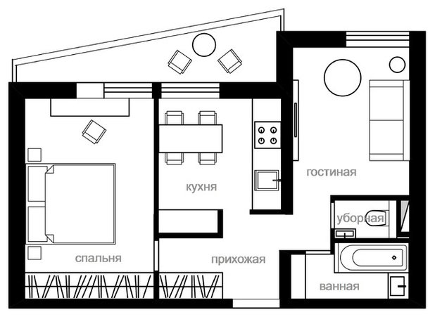
Квартира общей площадью 44,4 кв.м состоит из двух жилых комнат, раздельного санузла, кухни и лоджии. Жилая площадь квартиры — 28,4 кв.м, площадь кухни — 6 кв.м.
Планировка квартиры удачна изначально, поскольку кухня расположена в центре квартиры между жилыми комнатами, что делает проживание удобнее.
Важно: Между кухней и комнатой 1 проходит несущая нагрузку стена, в которой проложены два вентиляционных канала, что делает эту стену недоступной к любым изменениям — перенести или организовать в ней новый проем строго запрещено.
ЧИТАТЬ ПО ТЕМЕ…
Домашний приговор: Маленькая кухня в типовом доме — что с ней делать
Одним из достоинств серии II-68-04 является архитектурная пластика, которая собирается из лоджий-балконов, поэтому будьте осмотрительны при соединении лоджии и постарайтесь не нарушить ритмику выносных элементов.
Перепланировка с незначительным переносом стены между кухней и прихожей. Заметно увеличена площадь санузла за счет уменьшения тамбура перед существовавшей ранее ванной комнатой.
В домах серии II-68-04 установлены электрические плиты, что дает возможность расширить или объединить кухню с жилой комнатой.
При подобном объединении нужно придерживаться правила: перенос кухонного оборудования должен быть в пределах площади старой кухни, тогда перепланировка будет законной и не создаст проблем при регистрации. Если мойку перенести на территорию жилой комнаты, то такую перепланировку уже не согласуют.
Перепланировка с выделением полноценной гардеробной комнаты повышенной вместимости. Здесь достаточно места не только для полноценных шкафов по двум стенам — уместились макияжный столик с зеркалом и креслло (вышел своего рода будуар).
Объединение кухни и жилой комнаты в квартире допустимо, так как дом не газифицирован. В центре кухни-гостиной расположен кухонный островок, который примыкает к дивану.
Исходная ванная превратилась в душевую: из-за скромного пространства монтаж стандартной ванны не разумен, поэтому была организована душевая. Не забывайте, что для душевых есть специальные кресла и скамьи, которые делают процесс принятия душа более комфортным. Если же вы склоняетесь к ванне больше, чем к душевой кабине, то могу обрадовать: современный рынок сантехнических изделий предоставляет ванны не стандартных размеров, кроме того, можно чашу ванны «построить» — качественная гидроизоляция и специалисты вам в этом помогут.
Две спальни и кухня-гостиная — тотальная перепланировка. Тот вариант, когда просчитан и использован каждый квадратный сантиметр, что позволило найти место и для второй спальни и для гостиной, которая сообщается с кухней.
В прихожей установлен шкаф, за которым со стороны гостиной расположен телевизор. Как и во втором варианте здесь присутствует душевая, в которой за счет изменения места установки раковины получилось найти место для стиральной машины.
Ванна или душевая кабина — это вопрос пристрастий, но если в квартире будут жить дети, я рекомендую установить ванну, поскольку это удобнее и безопаснее для детей. Часто душевые кабины обрамляются стеклом, которое безопасно и при разбивании не рассыпается на осколки, но допустить ситуацию, что ребенок забудет про невидимую стену из стекла вполне реально, как результат — ушибы и ссадины.
ЧИТАЙТЕ ПО ТЕМЕ…
Вечная проблема: Ванна или душ в единственном санузле
Планировочное решение: Ванная комната без… ванны
Если вам посчастливилось жить в доме этой серии, то оставьте нам, обывателям, возможность получать эстетическое удовольствие от ритмики окон и выносных элементов этого необычного здания.